Tư Vấn, Thiết Kế, Thi Công Lắp Điều Hòa Trung Tâm Daikin VRV Cho Biệt Thự Nhà Anh Lộc
Giải Pháp Lắp Điều Hòa Trung Tâm Daikin VRV Cho Biệt Thự Nhà Anh Lọc Ở Cẩm Lệ Đà Nẵng
Proshop Daikin Sen Việt, với hơn 16 năm kinh nghiệm, tự hào là đơn vị uy tín trực tiếp tư vấn, thiết kế, và thi công lắp đặt trọn gói hệ thống điều hòa trung tâm VRV 6A của hãng Daikin cho Biệt thự nhà anh Lộc tại Lô B2 – 20 đường Thăng Long, TP. Đà Nẵng.
1. Thông tin công trình biệt thự nhà anh Lộc
Dàn nóng: VRV 6A RXQ16BYM 1 chiều công suất 16HP
Dàn lạnh kiểu giấu trần nối ống gió:
- 1 dàn FXSQ25PAVE9 công suất 9,600BTU/h;
- 2 dàn FXSQ63PAVE9 công suất 24,000BTU/h,
- 1 dàn FXSQ100PAVE9 công suất 38,000BTU/h
- 1 dàn FXSQ140PAVE9 công suất 54,000BTU/h
2. Giải pháp Điều hòa VRV Daikin
Hệ thống điều hòa trung tâm VRV (Variable Refrigerant Volume) của Daikin là lựa chọn tối ưu, mang lại hiệu suất cao, tiết kiệm năng lượng, và tính thẩm mỹ tuyệt vời cho công trình biệt thự cao cấp.
Hệ thống Daikin VRV (Variable Refrigerant Volume) là giải pháp điều hòa trung tâm tiên tiến, nổi bật với hiệu suất cao, tiết kiệm năng lượng, và tính thẩm mỹ vượt trội – đặc biệt phù hợp cho các công trình biệt thự sang trọng.
Trong dự án này, toàn bộ không gian biệt thự được Proshop Daikin Sen Việt tư vấn lắp dàn lạnh giấu trần nối ống gió (IDU), mang lại những lợi ích vượt trội:
- Thẩm mỹ tuyệt đối: Toàn bộ dàn lạnh được lắp đặt âm trong trần thạch cao. Chỉ có các cửa gió (RAG - gió hồi, SAD - gió cấp) được thấy trên mặt phẳng trần, tạo nên sự đồng bộ, tinh tế và sang trọng cho không gian nội thất.
- Phân bổ gió đồng đều: Hệ thống ống gió được thiết kế để dẫn luồng không khí lạnh đến nhiều vị trí khác nhau trong phòng, đảm bảo nhiệt độ được phân bố đồng đều và dễ chịu trên toàn bộ diện tích sử dụng.
- Vận hành êm ái: Nhờ lắp đặt giấu trần, tiếng ồn từ dàn lạnh được giảm thiểu tối đa, mang lại không gian yên tĩnh, lý tưởng cho phòng ngủ và các khu vực nghỉ dưỡng.

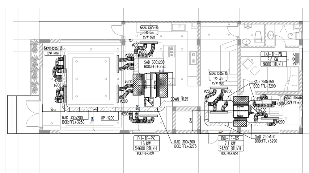
Mặt bằng thông gió điều hòa tầng 1 của Biệt thự nhà anh Lộc

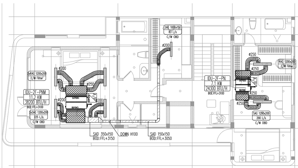
Mặt bằng thông gió điều hòa tầng 2 của Biệt thự nhà anh Lộc

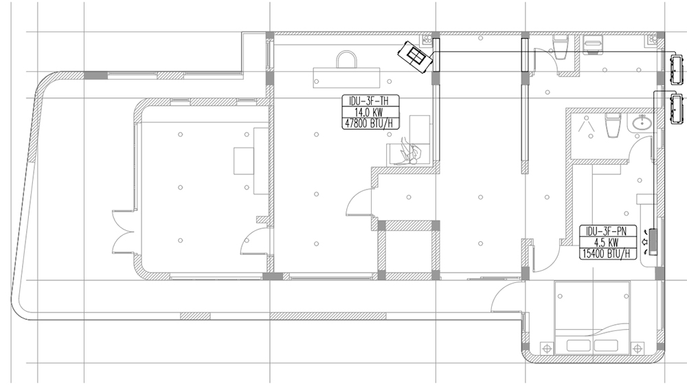
Mặt bằng thông gió điều hòa tầng 3 của Biệt thự nhà anh Lộc
3. Cam kết của Proshop Daikin Sen Việt
Chúng tôi cam kết mang đến giải pháp tối ưu, đảm bảo:
- Thiết kế chuẩn xác: Dựa trên bản vẽ chi tiết đã được giám đốc và các kỹ sư thiết kế phê duyệt.
- Chất lượng thi công: Lắp đặt theo đúng tiêu chuẩn kỹ thuật của Daikin, đảm bảo độ bền và hiệu suất hoạt động tốt nhất cho hệ thống VRV.
- Đúng tiến độ: Phối hợp chặt chẽ với chủ đầu tư để hoàn thành công trình đúng như kế hoạch đã đề ra
Proshop Daikn Sen Việt tự tin là đối tác tin cậy, giúp công trình Biệt thự nhà anh Lộc có được hệ thống điều hòa và thông gió hiện đại, thẩm mỹ và đẳng cấp.
Quý khách đang tìm kiếm giải pháp điều hòa và thông gió cho nhà ở, chung cư cao cấp, biệt thự ... Hãy liên hệ với chúng tôi để được hỗ trợ tốt nhất. Đội ngũ kỹ sư, kỹ thuật sẽ xuống tận công trình để khảo sát và tư vấn hoàn toàn miễn phí cho Quý khách:
- Hotline: 082.2222.716 - 0922.322.699
- Email: daikin@senviet.co
* TP. Hà Nội:
- Trụ sở: Lô C10-LK4-Ô 34, Khu C, KĐT mới Lê Trọng Tấn - Geleximco, phường Dương Nội.
- Số 63 đường Cầu Diễn, phường Xuân Phương.
- Kho hàng: xóm 2, xã An Khánh.
* TP. Hồ Chí Minh:
- Số 1264/2 Kha Vạn Cân, phường Linh Xuân.
- Số 348 Nguyễn Văn Linh, phường Tân Thuận.
- Số 52 Cao Lân, phường An Phú.
* TP. Đà Nẵng:
- Số 273 Điện Biên Phủ, phường Thanh Khê.
Album liên quan






































C10-LK4 Ô 34, Lê Trọng Tấn - Geleximco, P. Dương Nội, TP. Hà Nội